Москва, ул Плеханова,
4А
м. Шоссе Энтузиастов
7 мин. пешком (700 м)
ID 16800
м. Шоссе Энтузиастов
7 мин. пешком (700 м)
Без комиссии
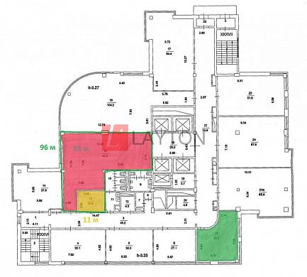
| Цена за м2 | Площадь | 140 000 руб | 85 м2 | За помещение | 11 900 000 руб |
| 140 000 руб | 85 м2 | 11 900 000 руб | |||
| Оформление | |||||
| 14 | |||||
| планировка | |||||
| 3 000 руб за м2 в год | |||||
Характеристики помещения
Этаж:
14
Готовность:
Планировка:
планировка
Эксплуатационные платежи:
3 000 руб за м2 в год




