Москва, ш Варшавское,
1 стр 1-2
м. Тульская
8 мин. пешком (710 м)
ID 115441
м. Тульская
8 мин. пешком (710 м)
Без комиссии
| Платежи | м2/ в год | Итого в месяц | Итого в год |
| Арендная ставка | 28 279 руб | 1 772 151 руб | 21 265 808 руб |
| Эксплуатационные расходы | 2 632 000 руб | 219 333 руб | 2 632 000 руб |
| Коммунальные услуги | включены | ||
| Итого | 1 991 484 руб | 23 897 808 руб |
включены
5
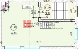
планировка
3 500 руб за м2 в год
ежемесячно авансом
1 месяц
Характеристики помещения
Этаж:
5
Готовность:
Планировка:
планировка
Эксплуатационные платежи:
3 500 руб за м2 в год
Коммунальные платежи:
включены в базовую ставку
Условия оплаты:
ежемесячно авансом
Депозит:
1 месяц




























