Москва, ш Варшавское,
125Ж к 6
м. Южная
7 мин. пешком
ID 37486
м. Южная
7 мин. пешком
Без комиссии
| Платежи | м2/ в год | Итого в месяц | Итого в год |
| Арендная ставка | 11 885 руб | 301 087 руб | 3 613 040 руб |
| Эксплуатационные расходы | включены | включены | включены |
| Коммунальные услуги | |||
| Итого | 301 087 руб | 3 613 040 руб |
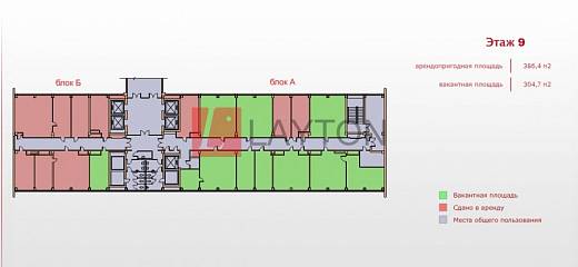
9
планировка
ежемесячно авансом
1 месяц
Характеристики помещения
Этаж:
9
Готовность:
Планировка:
планировка
Коммунальные платежи:
Условия оплаты:
ежемесячно авансом
Депозит:
1 месяц





